



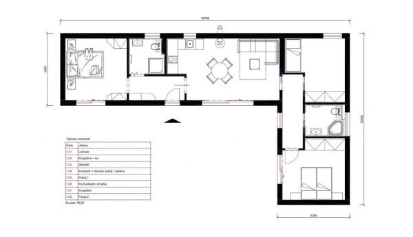
L 12-10
Größe: 16,2 x 10 m
Wohnfläche: 76,7 m²
Preis ohne MwSt. ab: 2.405.000 CZK
Das Haus können wir nach Ihren Wünschen und Bedürfnissen anpassen. Die Module können auch zu L-, U-Formen oder mehreren Etagen kombiniert werden. Lassen Sie sich auch in unserer Referenzgalerie inspirieren.
- Grundriss: 4 + kk
- Gebäudefläche: 92,4 m²
- Deckenhöhe: 2,5 m
- Gebäudehöhe (Satteldach): 3,3 m
- Verwendung: ganzjährig nutzbar, genehmigungsfähig
- Dachtyp: Flachdach mit Attika
- Energieeffizienz: niedrigenergetisch (Klasse B)
- Überdurchschnittliche Heizsysteme: Fußbodenheizung / Kaminöfen / Wärmepumpe
- Ausstattung des Hauses: komplett ausgestattetes Badezimmer
- Gründungsoptionen: Erdboden-Schraubpfähle / Betonfundamente
- Erweiterungsmöglichkeiten: Sicherheitsanlage, Außenterrasse, elektrische Rollläden / Jalousien
Warum dieses Haus wählen?
Fassade mit Lärchen-Rhombusverkleidung, weiße Wandfarbe im Inneren.
Laminatboden, Innentüren aus Holz oder Schiebetüren in der Wand.
Kunststoffdreifachverglasung in Anthrazit / Weiß (Änderung möglich).
Badezimmer mit Dusche, Waschbecken mit Unterschrank, Geberit mit wandhängender Toilette und Ariston-Wassererhitzer (50/80/100 l), elektrischer Handtuchwärmer, teilweise geflieste Badezimmerwände.
Möglichkeit einer voll ausgestatteten Küche.
Heizung mit elektrischen Heizkörpern (auch Fußbodenheizung, Kamin mit Wärmetauscher, Wärmepumpe möglich).
Innen- und Außenbeleuchtung nach Kundenwunsch, einschließlich Steckdosen und Schalter.
Die Fundamente bestehen aus Erdboden-Schraubpfählen, die nicht im Preis enthalten sind.
Kontaktieren Sie uns
Oder rufen Sie uns an +420 224 334 445